Home
Examples
About Us
Contact
Home
Examples
About Us
Contact
VF1
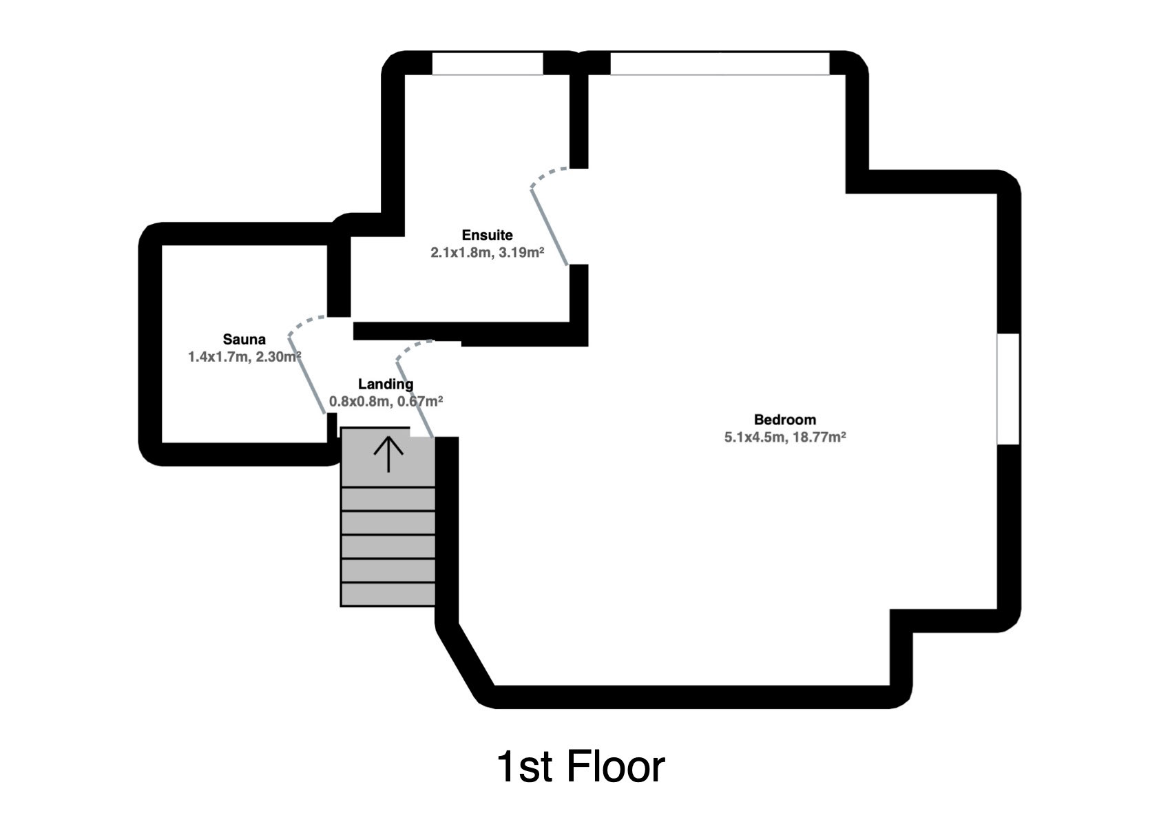
360 Tour, photographs and floorplansÂ
View 360 Tour Here
↑
Back to Top